Residential - Sales

Search

Pocket House, Melbourne Grove. SE22
Sold

Key Features

  • Exceptional freehold residence
  • Winner of several architecture awards
  • Prestigious tree-lined location
  • Excellent access into The City
  • Several 'outstanding' schools nearby
  • Virgin High Speed Fibre Broadband enabled outlets in bedrooms and living room
  • Superb local amenities close by
  • This unique, design led, award winning house of 1130 square feet is built to a high specification and nestled quietly among the beautiful period properties of East Dulwich. The property is a complete one-off, modelled imaginatively on a London micro site.

Property Information

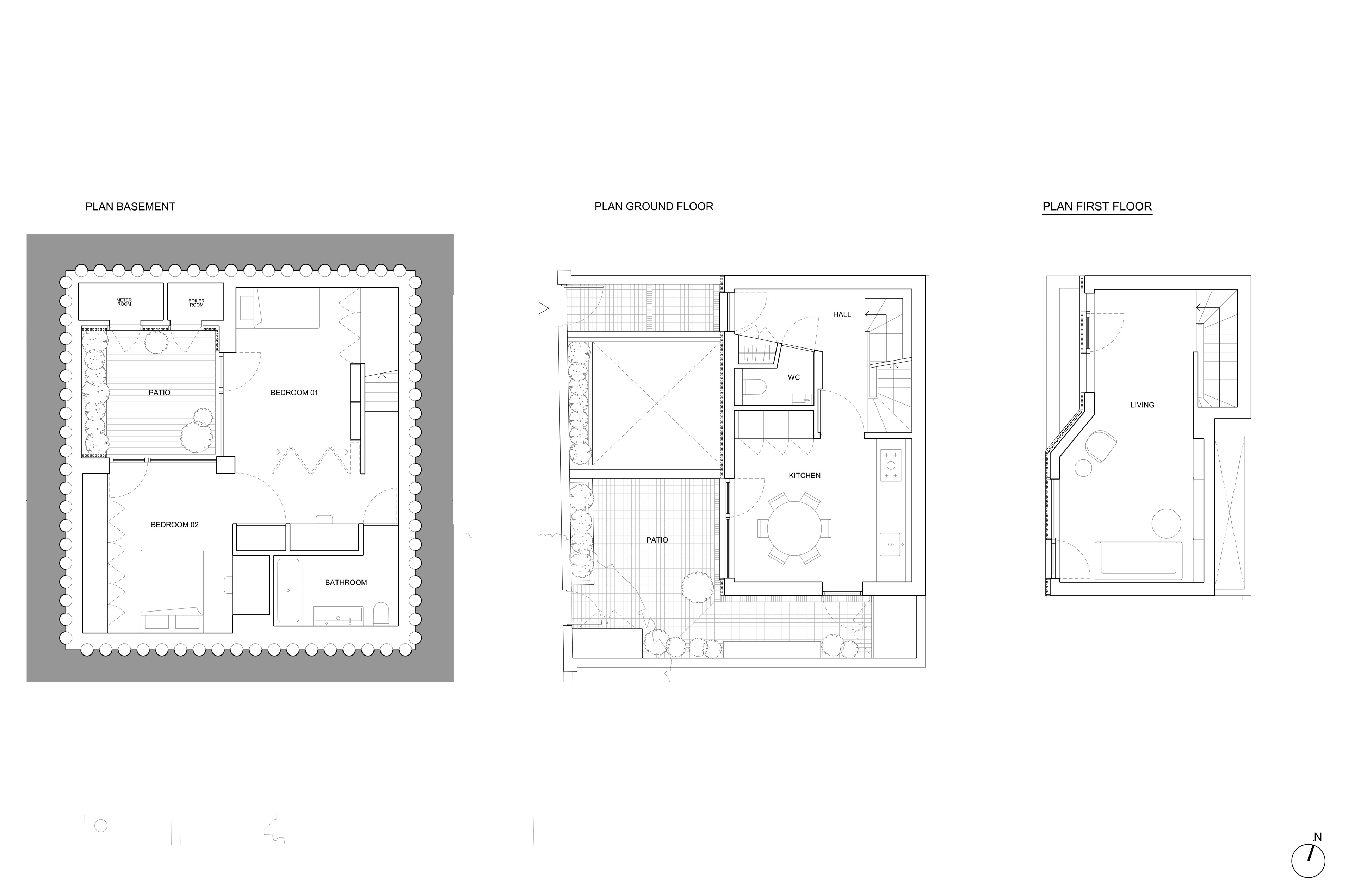
Designed by the architect practice Tikari Works, the property cuts a low profile in its secluded setting, finished with a rich pallet of high quality and natural materials and hiding an internal sunken courtyard.

Above ground, a veil of fine timber wraps the living and dining volumes offering privacy and shading. Internal spaces are enriched by a tension between delicate joinery and exposed brickwork and polished concrete flooring. (see spec list below)

The house is split over three levels with comfort, practicality and flexibility in mind. You will feel the sense of space and light throughout as ceiling heights on each floor are generous, clever storage areas are plentiful and daylight comes in through varied angles creating interesting shadows and creating a calm and relaxing atmosphere.

The reception room occupies the entire upper floor, whilst the ground floor contains the dining room and kitchen with direct access to a beautiful patio. There is also a guest WC and built-in wardrobe.

The lower level is arranged around a sunken courtyard planted with beautiful ferns, bringing ample daylight into the bedrooms and offering the occupants a peaceful outlook onto this private outside space. There is plenty of storage at this level in form of built-in wardrobes, bespoke desks and extra external storage rooms. 

A large family bathroom with double sink is also located at this level. The interiors are reduced to a simple material pallet of brick, timber and concrete,  consisting of exposed Douglas Fir floor joists, Spruce wall panelling, handmade Danish exposed brick work, extra wide white-washed Douglas Fir floor boards and an exposed polished concrete floor to the ground and basement. 

All the materials elegantly come together to to create a bright, modern and versatile home.

Completed in 2018 to an immaculate standard 'The Pocket House' as it is known, is the winner of several awards most notably the RIBA London Award 2019, runner-up at the Stephen Lawrence Awards 2019 and has been featured in an episode of Grand Design "House of the Year 2019".

Find this unique residence on a quiet and leafy residential street with permit-parking, close to The Charter School East Dulwich on nearby Jarvis Road, plus independent secondaries Alleyn's and JAGS, and to the local independent and state primary schools in Dulwich Village and East Dulwich, including Dulwich Village Infants' School and Dulwich Hamlet Junior School (Ofsted-rated 'Outstanding').

Local Lordship Lane has a wonderful offering of shops, bars and restaurants, including Chener (books), Mons (cheese), Moxon's (fish), William Rose (meat), SMBS (whole and fresh foods), Terroirs, The EDT and Franklin's restaurant.   Just off Lordship Lane, North Cross Road has a top Saturday market too and little open-all-week boutique shops as well. East Dulwich Picturehouse is a popular fairly recent addition to the area, as are two M&S Food Halls.  

Dulwich Village is also a short and pleasant walk for Dulwich Picture Gallery, designed by Regency architect Sir John Soane - and the oldest public art gallery in England (opened to the public in 1817), plus The Crown & Greyhound pub, Gail's, Pizza Express and Rocco Di Papa. For more options, Herne Hill, Peckham and Camberwell are easily reached. Green spaces to enjoy locally include Dulwich Park, Goose Green, Peckham Rye Park & Common, and Camberwell's Ruskin Park.

East Dulwich Station is a mere 5 minutes' walk away. The overland station provides direct trains to London Bridge and a number of bus routes into Victoria, Tottenham Court Road and Waterloo. Only slightly further you will walk past Sainsburys supermarket and Denmark Hill Station (routes to Clapham Junction, Victoria, Shoreditch High Street and Canada Water to name but a few).

More detail on specification:

- Exposed floor joists: Visual grade solid North American Douglas Fir timber joists, white-washed with OSMO oil

- Timber wall panels throughout finished with Spruce Veneer, white-washed with OSMO oil

- Exposed brickwork internal/external: handmade Danish clay bricks by PETERSEN TEGL

- Floor finish Living room: Extra wide floorboards by CHAUCEYS 'Tectonic Douglas Fir' 21x300 with Linen Finish

- Floor finish Groundfloor and Basement: Exposed polished concrete flooring by LAZENBYS

- Stairs: Bespoke timber stairs made of structural grade plywood with brass detail Appliances: Fridge/Freezer: Siemens KI86VVF30G Oven: Smeg 60cm Linea White Glass Pyrolytic Multifunction Single Hob/Extract: Bora BIA integrated cooktop extractor Dishwasher: Siemens integrated Washing machine: Bosch Tumble Dryer:Bosch Heating:

Programmable zoned underfloor heating to all rooms Vaillant Ecotec 832 gas fired combi boiler in external boiler room Kitchen: Bespoke kitchen units completely made out of birchply with spruce veneer (whitewashed), manufactured by UNCOMMON PROJECTS Hi-Mac worktop made from blended acrylics, offering a very durable maintenance free finish Bathroom: Tiles by Domus, DVI 01 Interni Laufen & Duravit & Bette sanitaryware with Lusso taps and shower PEACE OF MIND Focus on quality and longevity Building Warranties: ASUC Basement Indemnity Guarantee (insurance backed) until 2028 Premier Self-built Warranty until 2028

* Photos provided by Edmund Sumner / Sumner Partnership and Jocelyn Low Photography *

Location

Disclaimer

Jones Davies and their clients and any joint agents give notice that:

They are not authorised to make or give any representations or warranties in relation to the property either here or elsewhere, either on their own behalf or on behalf of their client or otherwise. They assume no responsibility for any statement that may be made in these adverts. These particulars do not form part of any offer or contract and must not be relied upon as statements or representations of fact.

Any areas, measurements or distances are approximate. The text, computer generated images and plans are for guidance only and are not necessarily comprehensive.

Interested in this property?

Complete the form below and we will contact you with further details

Copyright 2026 Jones Davies | Website designed by The Smarter Web Company